Calculating your Roof Opening

If your roof build-up is 98mm or greater, you can opt for our ‘On the Rafter’ installation method, which allows for an elegant, flush finish that aligns seamlessly with the roofline.

For roof build-ups of less than 98mm, our ‘Between the Rafters’ installation guide and calculator below have been specifically designed to assist you in achieving optimal results.

The Conservation Rooflight Flush Slate, Cold Roof Calculator

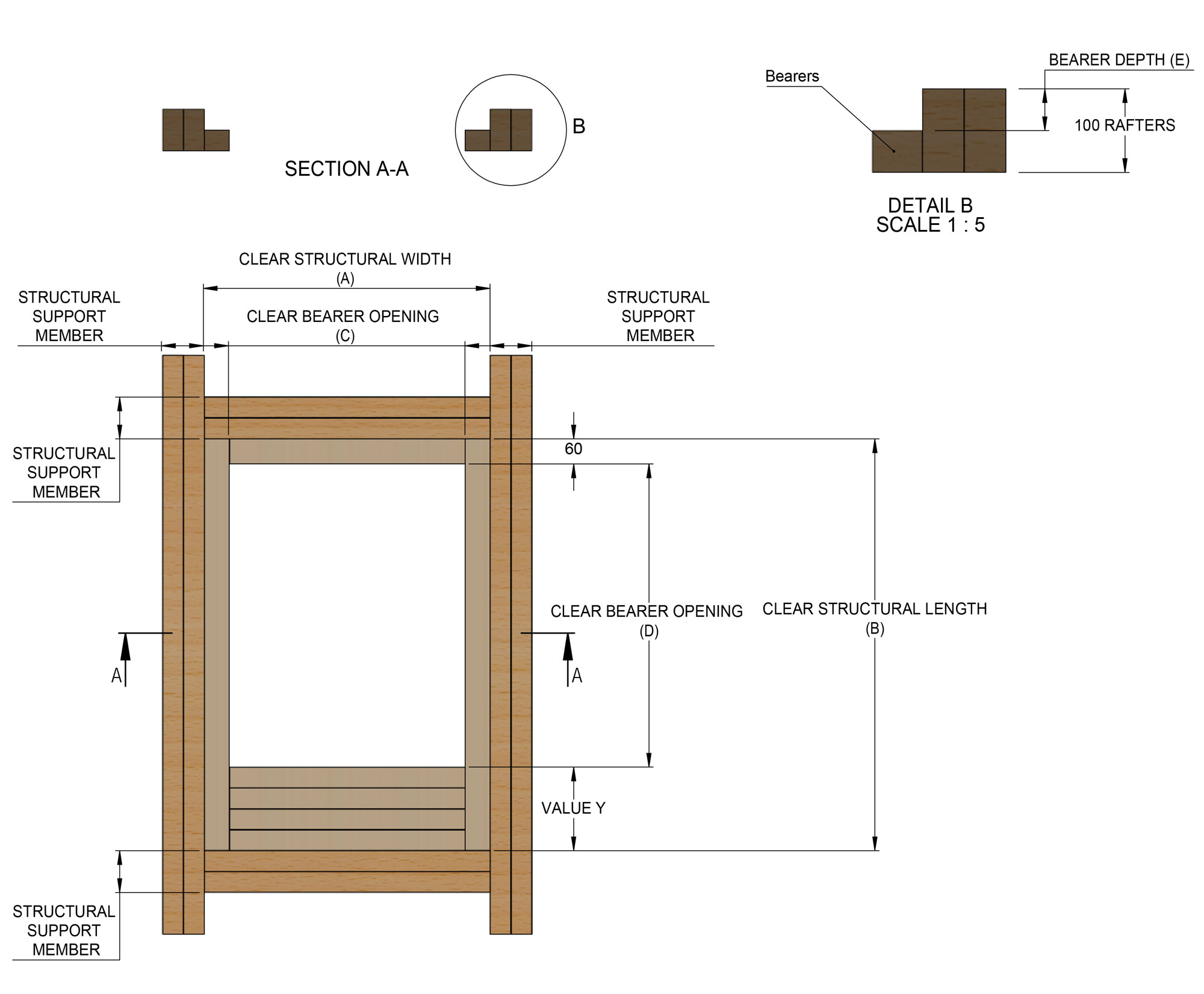
Please use this tool in conjunction with drawing ‘CR_CRSF_LS – Conservation , Cold Roof, ‘Between the rafter’ in order to gain Value Y. The installation drawing is designed to help calculate the optimum size of bearers required at the cill to achieve a 5° run-off from the tilting fillet, ensuring customers get the best visual appearance.

Please enter the dimensions of your roof arrangement in the fields below. The result (Value Y) will be calculated automatically.

Conservation Rooflight installed with a flashing kit
[wpcode id="24749"]
Roof Drawing
Value X: --
Roof Drawing
Value Y: --
Value Z: --

Calculating your Clear Structural Opening

Using the calculation above, we can now calculate your clear structural opening. Select your rooflight size and find the clear structural opening below.
[wpcode id="24836"]
[wpcode id="25004"]
Roof Drawing
Value A: --
Value B: --
Value C: --
Value D: --
Value E: --

Frequently Asked Questions

In a cold roof, insulation is placed at ceiling level, leaving the roof space above uninsulated and requiring ventilation to control moisture build-up and prevent condensation. Conversely, a warm roof has insulation installed above the roof structure, keeping the entire roof space within the building’s thermal envelope, retaining heat and reducing potential moisture and condensation build-up.

A warm roof generally offers better energy efficiency by minimising thermal bridging and maintaining consistent temperatures within the roof space. However, cold roofs can be more cost-effective and are suitable for certain applications, provided they are properly ventilated.

Common insulation materials for cold roofs include mineral wool, fibreglass batts, and rigid foam boards. These are typically installed between the ceiling joists, with a ventilation gap above to allow air circulation and prevent condensation.

Yes, we have a digital library of installation drawings showing the details of a cold roof installation with a variety of roof build ups. To find the detail suitable for your project, visit our drawings and downloads page. Here you will find warm roof details too.

A ‘between the rafters’ installation involves fitting the rooflight within the depth of the existing rafters, rather than mounting it on top. This method is typically employed for creating a flush finish with The Conservation Rooflight when the roof build-up is less than 98mm.

An ‘on the rafter’ installation involves mounting the rooflight directly on top of the existing rafters, rather than fitting it within them. This method is typically suitable for installing for The Conservation Rooflight when the roof build-up is 98mm or more, allowing for a flush finish with the roofline.

Talk to our Team of Experts

Send us your details and our Sales Team will be in touch. 

TLC Logo June 2023-Solid Black

Request a Quote

We invite you to complete the fields below and a member of our technical sales team will be in touch.

Please select your rooflight solution of interest:
Tell Us More:

Our technical team will be in touch for more information to provide your quote. Alternatively, please share more about your project.

TLC Logo June 2023-Solid Black

Get In Touch

TLC Logo June 2023-Solid Black

Register Your Product

Our standard terms and conditions of sale provide a warranty of 12 months from date of delivery. We recommend you register your products within this timeframe to extend your warranty, where applicable.

If you have more than one rooflight from The Rooflight Co, please enter all serial numbers below:
?
Serial number label found either:-
  • On the back of the O&M booklet supplied with the rooflight.
  • There is a sticker within the channel of the underside of the casement, visible when the casement is open OR Open the rooflight and the sticker will be located in an area that can't be seen when the rooflight is closed.
  • There is a sticker within the thermoliner channel (Channel on the baseplate), visible when the casement is open OR Open the rooflight and the sticker will be located in an area that can't be seen when the rooflight is closed.
TLC Logo June 2023-Solid Black

Rooflight Installation Support

If you have more than one rooflight from The Rooflight Co, please enter all serial numbers below:
?
Serial number label found either:-
  • On the back of the O&M booklet supplied with the rooflight.
  • There is a sticker within the channel of the underside of the casement, visible when the casement is open OR Open the rooflight and the sticker will be located in an area that can't be seen when the rooflight is closed.
  • There is a sticker within the thermoliner channel (Channel on the baseplate), visible when the casement is open OR Open the rooflight and the sticker will be located in an area that can't be seen when the rooflight is closed.
TLC Logo June 2023-Solid Black

Help With My Order

I agree for my data provided on the form submission to be sent to CD Blinds Ltd and stored by CD Blinds Ltd only for the purposes of consulting on shading solutions.

I agree for CD Blinds Ltd to contact me using the contact information I have provided on the form submission for shading consultation purposes.

I understand that I can easily withdraw consent at any time by contacting CD Blinds Ltd via email to info@cdblinds.co.uk.

CD Blinds Ltd will interact with you under their terms of service.

By using their services, you agree to be bound by the CD Blinds terms of service located here https://www.cdblinds.co.uk/privacy-policy/.

If you have any questions about the terms, please email us at shading@therooflightco.com.

TLC Logo June 2023-Solid Black

Get In Touch With The Rooflight Co